桃園廣豐大湳聚豐耘2美大三房平車 (AA6336328)
總價 1,698 萬元 (含車位)
1,798 萬元
降價通知我
座落 桃園市桃園區國際路一段
坪數 52.56
不含公設車位為 43.54
地坪 9.37
單價 本物件含車位,計算方式請洽 經紀人
物件型態 電梯大樓
用途現況 住家; 空屋
謄本用途 住家用
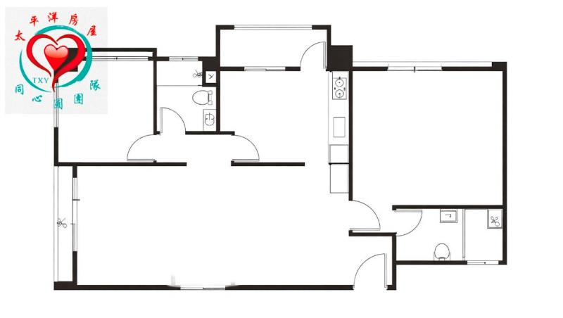
格局 3房/ 2廳/ 2衛/ 2陽台
樓層 4 / 12樓
朝向 座東向西
管理費 45,396元 / 年繳
戶數/電梯 36戶, 每層2戶/ 電梯1部
屋齡 10年8個月
建物結構 鋼筋混凝土造
建物外觀 二丁掛
車位 坡道平面
邊間
採光 2 面
瓦斯種類 天然管線
商圈社區 桃園市
公園綠地 國際公園
學校學區 市立建國國中
商場市場 全聯
特色說明
方正大三房|格局好規劃 空屋現況|隨時可帶看 前後雙陽台|通風採光極佳 平面車位|停車便利 社區單純|居住品質佳 生活機能超強 近廣豐新天地 全聯 家樂福 寶雅 咖啡店 國中小 大湳市場 國際公園 生活採買、餐飲、娛樂一次滿足
權狀資料
主建物 26.32 附屬建物 2.69
公共設施 14.53 土地面積 9.37
公設車位 9.02 權狀車位 0.00
使用分區 第二種住宅區
  1. 坪數=主建物+附屬建物+公共設施(包含公設車位)+權狀車位。
  2. 主建物係指客廳、餐廳、臥房、浴室、廚房等室內面積。
  3. 公共設施係指區分所有建物之全部或部分所有共用之建物面積,像是樓梯間、電梯間、屋頂突出物等。
  4. 上述係由一平方公尺=0.3025坪換算,詳細資料仍以地政機關核發之謄本為準。
鶯歌鳳鳴加盟店
巨合不動產經紀有限公司
(02)2670-8011
歡迎洽詢門市值班人員!
您好,我是錡侯翰。
請撥我的手機 0915-488-699
或加我 LINE 好友
由我為您提供服務。
本物件的地圖參考位置

※ 本網頁所刊登照片如為道路街景或土地示意圖,非廣告標的所在地僅供參考,實際狀況請依使用執照或謄本所載為準。
桃園廣豐大湳聚豐耘2美大三房平車,桃園市桃園區國際路一段
桃園廣豐大湳聚豐耘2美大三房平車,桃園市桃園區國際路一段
桃園廣豐大湳聚豐耘2美大三房平車,桃園市桃園區國際路一段
桃園廣豐大湳聚豐耘2美大三房平車,桃園市桃園區國際路一段
桃園廣豐大湳聚豐耘2美大三房平車,桃園市桃園區國際路一段
桃園廣豐大湳聚豐耘2美大三房平車,桃園市桃園區國際路一段
桃園廣豐大湳聚豐耘2美大三房平車,桃園市桃園區國際路一段
桃園廣豐大湳聚豐耘2美大三房平車,桃園市桃園區國際路一段
桃園廣豐大湳聚豐耘2美大三房平車,桃園市桃園區國際路一段
桃園廣豐大湳聚豐耘2美大三房平車,桃園市桃園區國際路一段
桃園廣豐大湳聚豐耘2美大三房平車,桃園市桃園區國際路一段

資料處理中,請稍等。